Жилищна сграда - кв. Кючук Париж, бул. Никола Вапцаров 9
кв. Кючук Париж, жилищна кооперация с адрес бул. Никола Вапцаров №9
| Имот | Вид | Застроена площ | Обща площ | Изложение | Статус |
|---|---|---|---|---|---|
| Офис | – | 13,82 м² | 15,95 м² | – | продаден |
| Гараж №1 | – | 19,93 м² | 23,00 м² | – | продаден |
| Гараж №2 | – | 20,72 м² | 23,91 м² | – | продаден |
| Гараж №3 | – | 18,78 м² | 21,67 м² | – | продаден |
| Паркоместо | – | 14,31 м² | 16,52 м² | – | продаден |
| Бистро на 2 нива-сутерен и етаж 1 | – | 144,87 м² | 167,2 м² | – | продадено |
Офис
Гараж №1
Гараж №2
Гараж №3
Паркоместо
Бистро на 2 нива-сутерен и етаж 1
кв. Кючук Париж, жилищна кооперация с адрес бул. Никола Вапцаров №9
| Имот | Вид | Застроена площ | Обща площ | Изложение | Статус |
|---|---|---|---|---|---|
| Бистро на 2 нива-партер и етаж 1 | – | 144,87 м² | 167,20 м² | – | продадено |
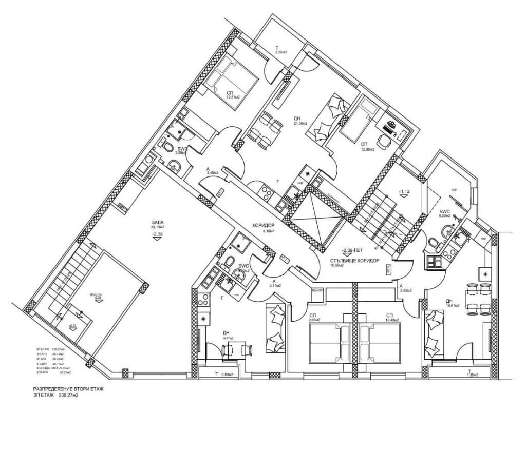
| Апартамент 1 | 3 ст. | 66,43 м² | 76,36 м² | СИ/СЗ | продаден |
| Апартамент 2 | 2 ст. | 38,26 м² | 44,09 м² | Ю | продаден |
| Апартамент 3 | 2 ст. | 46,71 м² | 53,83 м² | СИ/СЗ | продаден |
Бистро на 2 нива-партер и етаж 1
Апартамент 1
Етаж 2
Вид: тристаен
Застроена площ: 66,43 м²
Обща застроена площ: 76,36 м ²
Изложение: СИ/СЗ
Статус: Продаден
Апартамент 2
Етаж 2
Вид: двустаен
Застроена площ: 38,26 м²
Обща застроена площ: 44,09 м ²
Изложение: Ю
Статус: Продаден
Апартамент 3
кв. Кючук Париж, жилищна кооперация с адрес бул. Никола Вапцаров №9
| Имот | Вид | Застроена площ | Обща площ | Изложение | Статус |
|---|---|---|---|---|---|
| Апартамент 4 | 3ст. | 69,96 м² | 80,74 м² | СИ/СЗ | продаден |
| Апартамент 5 | 2ст. | 60,12 м² | 69,67 м² | ЮЗ | продаден |
| Апартамент 6 | 2ст. | 43,40 м² | 50,29 м² | Ю | продаден |
| Апартамент 7 | 2ст. | 50,27 м² | 58,25 м² | Ю | продаден |
Апартамент 4
Етаж 3
Вид: тристаен
Застроена площ: 69,96 м²
Обща застроена площ: 80,74 м²
Изложение: СИ/СЗ
Статус: Продаден
Апартамент 5
Етаж 3
Вид: двустаен
Застроена площ: 60,12 м²
Обща застроена площ: 69,67 м²
Изложение: ЮЗ
Статус: Продаден
Апартамент 6
Етаж 3
Вид: двустаен
Застроена площ: 43,40 м²
Обща застроена площ: 50,29 м²
Изложение: Ю
Статус: Продаден
Апартамент 7
кв. Кючук Париж, жилищна кооперация с адрес бул. Никола Вапцаров №9
| Имот | Вид | Застроена площ | Обща площ | Изложение | Статус |
|---|---|---|---|---|---|
| Апартамент 8 | 3ст. | 69,96 м² | 80,74 м² | СИ/СЗ | продаден |
| Апартамент 9 | 2ст. | 60,12 м² | 69,67 м² | ЮЗ | продаден |
| Апартамент 10 | 2ст. | 43,40 м² | 50,29 м² | Ю | продаден |
| Апартамент 11 | 2ст. | 50,27 м² | 58,25 м² | Ю | продаден |
Апартамент 8
Етаж 4
Вид: тристаен
Застроена площ – 69,96 м²
Обща застроена площ – 80,74 м²
Изложение: СИ/СЗ
Статус: Продаден
Апартамент 9
Етаж 4
Вид: двустаен
Застроена площ – 60,12 м²
Обща застроена площ – 69,67 м ²
Изложение: ЮЗ
Статус: Продаден
Апартамент 10
Етаж 4
Вид: двустаен
Застроена площ – 43,40 м²
Обща застроена площ – 50,29 м ²
Изложение: Ю
Статус: Продаден
Апартамент 11
кв. Кючук Париж, жилищна кооперация с адрес бул. Никола Вапцаров №9
| Имот | Вид | Застроена площ | Обща площ | Изложение | Статус |
|---|---|---|---|---|---|
| Апартамент 12 | 3ст. | 69,96 м² | 80,74 м² | СИ/СЗ | продаден |
| Апартамент 13 | 2ст. | 60,12 м² | 69,67 м² | ЮЗ | продаден |
| Апартамент 14 | 2ст. | 43,40 м² | 50,29 м² | Ю | продаден |
| Апартамент 15 | 2ст. | 50,27 м² | 58,25 м² | Ю | продаден |
Апартамент 12
Етаж 5
Вид: тристаен
Застроена площ – 69,96 м²
Обща застроена площ – 80,74 м²
Изложение: СИ/СЗ
Статус: Продаден
Апартамент 13
Етаж 5
Вид: двустаен
Застроена площ – 60,12 м²
Обща застроена площ – 69,67 м ²
Изложение: ЮЗ
Статус: Продаден
Апартамент 14
Етаж 5
Вид: двустаен
Застроена площ – 43,40 м²
Обща застроена площ – 50,29 м ²
Изложение: Ю
Статус: Продаден
Апартамент 15
кв. Кючук Париж, жилищна кооперация с адрес бул. Никола Вапцаров №9
| Имот | Вид | Застроена площ | Обща площ | Изложение | Статус |
|---|---|---|---|---|---|
| Апартамент 16 | 3ст. | 69,96 м² | 80,74 м² | СИ/СЗ | продаден |
| Апартамент 17 | 2ст. | 60,12 м² | 69,67 м² | ЮЗ | продаден |
| Апартамент 18 | 2ст. | 43,40 м² | 50,29 м² | Ю | продаден |
| Апартамент 19 | 2ст. | 50,27 м² | 58,25 м² | Ю | продаден |
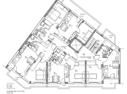
Апартамент 16
Етаж 6 (първи мансарден етаж)
Вид: тристаен
Застроена площ – 69,96 м²
Обща застроена площ – 80,74 м²
Изложение: СИ/СЗ
Статус: Продаден
Апартамент 17
Етаж 6 (първи мансарден етаж)
Вид: двустаен
Застроена площ – 60,12 м²
Обща застроена площ – 69,67 м ²
Изложение: ЮЗ
Статус: продаден
Апартамент 18
Етаж 6 (първи мансарден етаж)
Вид: двустаен
Застроена площ – 43,40 м²
Обща застроена площ – 50,29 м ²
Изложение: Ю
Статус: Продаден
Апартамент 19
кв. Кючук Париж, жилищна кооперация с адрес бул. Никола Вапцаров №9
| Имот | Вид | Застроена площ | Обща площ | Изложение | Статус |
|---|---|---|---|---|---|
| Апартамент 20 | 3ст. | 99,86 м² | 114,49 м² | ЮЗ/СИ | продаден |
| Апартамент 21 | 2ст. | 52,16 м² | 59,95 м² | Ю | продаден |
Апартамент 20
Етаж 7 (втори мансарден етаж)
Вид: тристаен
Застроена площ – 99,86 м²
Обща застроена площ – 114,49 м²
Изложение: ЮЗ/СИ
Статус: Продаден
Апартамент 21
































